255 Gray’s Inn Road, WC1X, Mixed Use Property for Sale
Mixed commercial and residential building with significant refurbishment and conversion potential, just moments from King’s Cross.
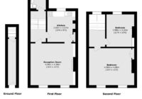
1842 sq ft
£Offers from £1400000
Type: Lettings
Arrange a ViewingArrange a viewing
For further information contact
                                            
                                            
                                            - Information
 - Map
 - Floor Plan
 - Brochure
 
Information
Mixed commercial and residential building with significant refurbishment and conversion potential, just moments from King’s Cross.
Nestled between Gray’s Inn and the vibrant King’s Cross, 255 Gray’s Inn Road presents a rare opportunity in one of London’s most connected neighbourhoods. Create an inspiring live‑work space or boutique mixed‑use scheme, capitalising on the area’s ongoing regeneration.
The property is positioned on the west side of Gray’s Inn Road at the corner of Argyle Street, in the heart of King’s Cross. This highly accessible central London location benefits from outstanding transport links and a vibrant mix of amenities.
King’s Cross St. Pancras International, London’s largest transport hub, is about a five‑minute walk away and provides access to six Underground lines: Circle, Hammersmith & City, Metropolitan, Northern, Piccadilly and Victoria as well as national and international rail services such as the Eurostar. Multiple bus routes along Euston Road and Gray’s Inn Road further enhance connectivity.
The surrounding area offers a wealth of shops, cafés, pubs and restaurants, including the boutiques and eateries of Coal Drops Yard and Granary Square.
Key Selling Points
- Mixed-use Freehold
 - 3 minute walk from King’s Cross
 - Potential to create up to 3 self-contained flats (subject to planning)
 - Suitable for small developers and owner-occupiers seeking a value-add opportunity
 
Map
Floor Plans
Final_1219671_255GraysInnR_040725185320387 copy.jpg
                                                                                    255 Grays Inn Road WC1X 8QT.jpg
                                                                                    Brochure
