The Adelphi, London, WC2N 6EZ
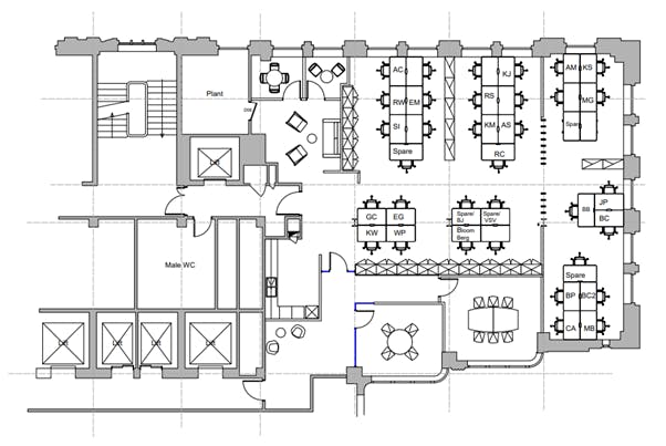
2,971 sf Part 6th Floor – Fully Fitted (previous tenant fit out) or can be provided in open plan, CAT A, if required.
2971 sq ft
Type: Lettings
Covent Garden
Temple
Charing Cross
Arrange a viewing
For further information contact
- Information
- Map
- Downloads
- Floor Plan
Information
AVAILABLE JUNE 2024: 2,971 sf Part 6th Floor – Fully Fitted (previous tenant fit out) or can be provided in open plan, CAT A, if required
The Adelphi is a landmark Covent Garden office building and one of the best known buildings in London. The building is arranged over 15 floors looking over Victoria Embankment gardens with direct river views. The building has been newly refurbished with a remodelled entrance hall. New occupiers include The Economist Newspaper, FGS Global, Conde Nast and Spotify. The available space is located in the North West Wing of the 6th floor, overlooking Covent Garden and comprises 2,971 sq ft.
The Adelphi is prominently located at 1-11 John Adam Street and looks onto Victoria Embankment Gardens and the River Thames. The building is a short walk from Covent Garden and benefits from its amenities, including restaurants, shops, bars and theatres. Transport links are excellent, with Embankment Station (Bakerloo, Circle, District and Northern lines), Charing Cross Station (Bakerloo, Northern lines & National Rail services) and Covent Garden Station (Piccadilly line) all within a 5 minute walk.
Key Selling Points
- Landmark Art Deco Office Building
- Fully Fitted Floor
- Concierge
- Air conditioning
- Raised floors
- Shower facilities
- Bicycle parking
Map
Floor Plans
The Adelphi Part 6th Spaceplan.png
