68 Cornhill, London, EC3

68 Cornhill is arranged over lower ground, ground and five upper floors, providing high quality office accommodation with a manned reception.

832 - 2091 sq ft

Type: Lettings

Bank Station (3 Minutes Walk)

Monument (5 Minute Walk)

Fenchurch Street (7 Minutes Walk)

Arrange a Viewing

Arrange a viewing

  • This field is for validation purposes and should be left unchanged.
More Information

For further information contact

  • Information
  • Map
  • Downloads

Information

Information

68 Cornhill is arranged over lower ground, ground and five upper floors, providing high quality office accommodation with a manned reception.

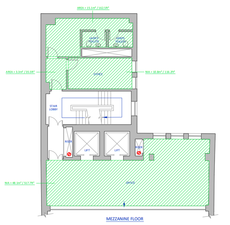
The mezzanine floor offers a fully fitted plug & play office space. The 1st floor has recently undergone refurbishment and now offers a fully cabled open planned space including a kitchenette.

Available Units

FLOOR SQ FT STATUS
1st 1,259 Available
Mezzanine 832 Available
Total 2,091

New lease for a term to be arranged by the   Landlord. Excluding Security of Tenure   provisions of the Landlord & Tenant Act   1954, Part 2, as amended.

RENT:

1st Floor: £57.50 per sq ft

Mezzanine Floor: £49.50 per sq ft

RATES: £22.57 per sq ft p.a (20/21 est.)

S/CHARGE: £10.21 per sq ft p.a.

VAT: The property is elected for VAT purposes.

EPC: Full EPC available on request.

Location

The building occupies a prominent position in the heart of the City, close to the Bank junction, with The Bank of England and the amenities of The Royal Exchange, within  close proximity.

Bank Station (Central, Circle, District, Northern, Waterloo & City and DLR) is within 5 minutes’ walk and Liverpool Street (Central, Circle, Metropolitan, Hammersmith & City and National Rail) and Cannon Street (Circle, District and National Rail) are also both within a few minutes’ walk. Transport connections from Liverpool Street will dramatically improve with the opening of Crossrail in 2022.

Amenities

  • Mezzanine floor fully fitted
  • 1st floor fully refurbicshed Cat-A
  • Air conditioning
  • Bike racks
  • Showers
  • Raised floor
  • Suspended ceilings with LED
  • Good natural light
  • Manned reception

Map

Downloads

BBG Real Estate London
Cookie Settings

This website uses cookies so that we can provide you with the best user experience possible. Cookie information is stored in your browser and performs functions such as recognising you when you return to our website and helping our team to understand which sections of the website you find most interesting and useful.

 

BBG - Advisers and Advisors, a specialist London City practice providing clients with a full range of complementary real estate services. We have a portfolio of available commercial real estate property and offices for rent, sale and offices to lease across London. Real Estate Agents operating across London specialising in Flexible Offices and Work Places. Office Space to Lease Real Estate Property Agents London.